Metaltagholder

Metaltagsholder NIRO til HVI-indfangersystemer eller indfangerstænger:

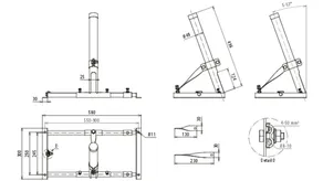
Holder egnet til lodret montering af indfangersystemer på metaltage op til en maks. taghældning på 53°.

Metaltagsholderen kan monteres på egnede og stabile konstruktioner. Metaltagsholderen er designet til et moment op til 320 Nm.

Til fastgørelse af indfangerstænger D40/D50 samt til montering af HVI light plus- og HVI-støtterør med indlagt leder.

Bemærk: Omstændighederne for montering bør afklares med den pågældende bygherre.

1 produkt

artikelnr. 105241 MDH D48 VB550.900 V2A

GTIN 4013364361225, CCT (EU): 73089098, Bruttovægt: 5.26 kg, VPE: 1.00 Pakkestørrelse


billeder

Yderligere information


Materiale: Rustfrit
Justerbar stelvidde: 550-900 mm
Taghældning: 5-53°

fabrikat: DEHN
Type: MDH D48 VB550.900 V2A
artikelnr.: 105241
eller tilsvarende

 

Tekniske data

Materiale Rustfrit
Justerbar stelvidde 550-900 mm
Taghældning 5-53°
Standard DIN EN 62561-1

Produkt 105241 blev tilføjet til notesblok.

Produkt 105241 blev lagt I kurven.


back to top